专注振动筛分设备研发·设计·生产·安装调试一站式服务
专注振动筛分设备研发
15136765558
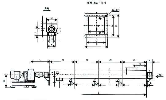
U型螺旋输送机
管式螺旋输送机
双轴螺旋输送机
水冷螺旋输送机
螺旋提升上料机
加热螺旋输送机
称重螺旋输送机
陶瓷贴片螺旋输送
无轴螺旋输送机
绞龙螺旋输送机
Z型斗提
C型提升机斗提
Z型斗式提升机
斗式垂直提升机
斗式提升机
大倾角皮带机
820直线筛
大型矿用滚筒筛
方摇摆筛
方形摇摆筛
1230滚筒筛
1836方摇
1535滚筒筛
2060滚筒筛
滚筒筛
振动平台
GZG振动给料机
SZG振动输送机
GZV电磁给料机
振实台
振动给料机
振动料斗
子母网架
中格
粘结网架
橡胶弹簧
网笼
托球板
束环
筛网
木质网架
密封件
真空上料机
粉体真空上料机
无尘投料站
风选机
皮带输送机
皮带输送机BJ4
气动真空上料机
欢迎来厂参观,免费携带物料试机,专车接送!
产品类别:输送设备
产品说明:
产品导航
联系人:路经理
电话:15136765558
邮箱:394875800@qq.com
地址:新乡市牧野区化学与物理产业园区创业路588号
* 有任何疑问,可拨打电话给我们!
PRODUCT INTRODUCTION
PRODUCT ADVANTAGES
专业的研发技术人员
研究产品种类多种多样
产品可长时间稳定工作
拥有完善的售后服务体系
NEWS INTRODUCTION
针对回转窑出口高达850℃的碳粉物料,我们定制了一套高效水冷螺旋输送系统。该设备由三台6米长螺旋机上下堆叠而成,紧凑的结...
近日,一款采用“两台螺旋搭接”设计的新型螺旋上料机成功应用于玻璃钢粉末输送场景,显著提升作业效率与可靠性。针对传统单螺旋...
面对强酸、强碱等高腐蚀性物料输送难题,传统设备易腐蚀、寿命短、维护成本高。如今,专业耐腐蚀螺旋输送机正成为化工、制药、化...
SERVICE PROCESS
豫公网安备 41071102000644号
返回顶部
在线客服
扫一扫 关注我们